ESTUDIO BAU
PROYECTOS
ESTUDIO
CUÉNTANOS
CONTACTO
ESTUDIO BAU
PROYECTOS
ESTUDIO
CUÉNTANOS
CONTACTO

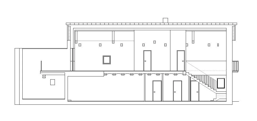
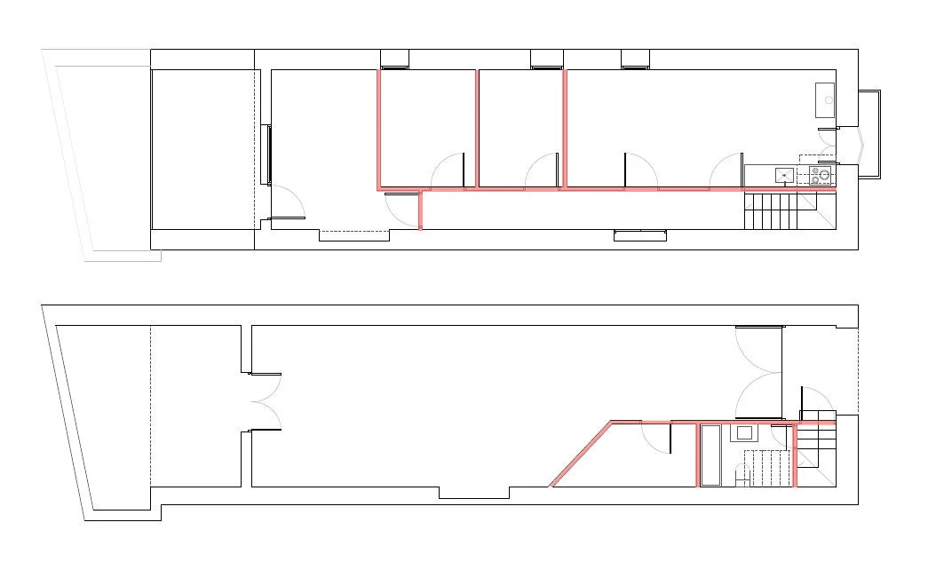
EL SOTO ETXAURI

IMG20211104171443.jpg
CapturaSDFADS.jpg
IMG20211104171951.jpg
1.JPG
2.JPG
3.JPG
4.JPG

2021

Etxauri, Navarra

Cliente privado

Uso residencial

Proyecto técnico, proyecto de arquitectura e interiorismo y dirección de obra.

Todo ANDUSAN EMBALAJES PATERNAIN GARDE NAVARRA ROMANA BASTERRA ETXAURI MIRADOR ETXAURI LURGORRIA ETXAURI LAVADERO ETXAURI BERNARDINO TIRAPU PAMPLONA LOFT ERMITAGAÑA PAMPLONA MEZKIRITZ FUENTE DEL HIERRO PAMPLONA PELUQUERÍA JLG PAMPLONA BIURDANA BHI BAILÉN BARCELONA EL SOTO ETXAURI REINA ÀMALIA BARCELONA MONASTERIO SAN PEDRO PAMPLONA VILLAFRANCA PAMPLONA NAVATA BARCELONA ISABA NAVARRA
ANDUSAN EMBALAJES PATERNAIN GARDE NAVARRA ROMANA BASTERRA ETXAURI MIRADOR ETXAURI LURGORRIA ETXAURI LAVADERO ETXAURI BERNARDINO TIRAPU PAMPLONA LOFT ERMITAGAÑA PAMPLONA MEZKIRITZ FUENTE DEL HIERRO PAMPLONA PELUQUERÍA JLG PAMPLONA BIURDANA BHI BAILÉN BARCELONA EL SOTO ETXAURI REINA ÀMALIA BARCELONA MONASTERIO SAN PEDRO PAMPLONA VILLAFRANCA PAMPLONA NAVATA BARCELONA ISABA NAVARRA